

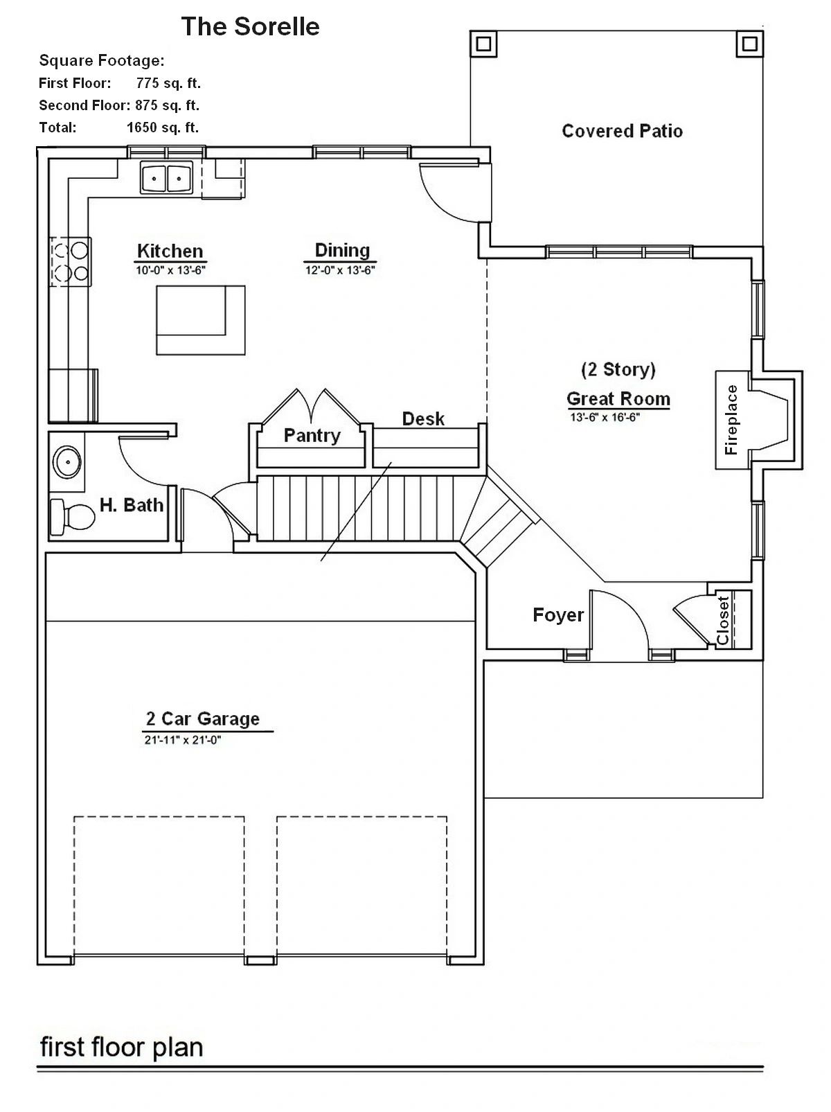
1st floor

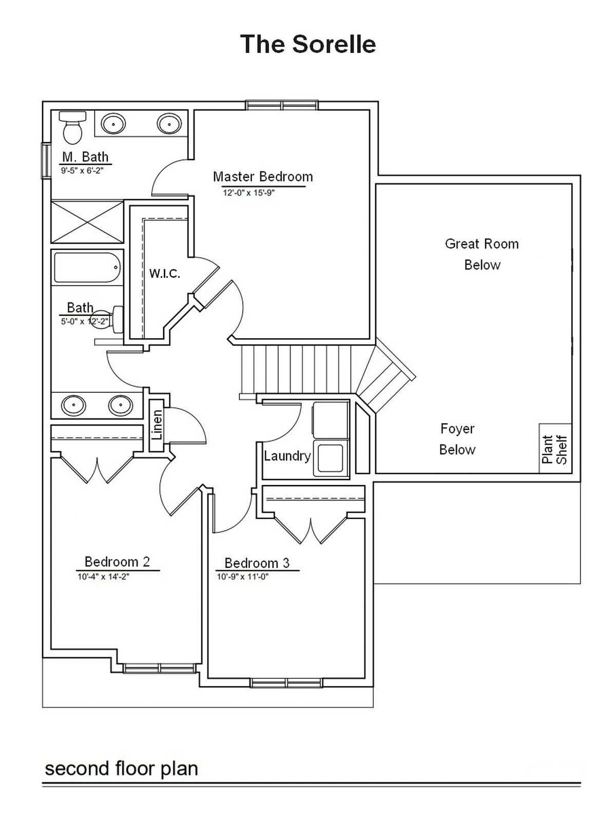
2nd floor



Extra large 200ft deep lots. A trio of gables and a porch entry create a charming exterior for this home. From the entry view the spacious two-story great room featuring a fireplace and a wall of windows overlooking the porch. A French door to the porch is located in the dining room along with a planning desk and a large pantry. Family will gravitate to the corner kitchen. It offers plenty of cabinet space and counter tops including a center island, complete with a breakfast bar-to add more space and convenience. Upstairs, the vaulted master suite features a walk-in closet and private bath. Two additional bedrooms and a utility Laundry room round out the second floor. Full basement.
We use cookies to analyze website traffic and optimize your website experience. By accepting our use of cookies, your data will be aggregated with all other user data.